울산 남구 야음동의 한적한 야산 자락에,
지금은 다소 낡고 조용한 주택단지가 하나 자리 잡고 있습니다.
겉으로 보기엔 평범한 오래된 집들이지만,
사실은 울산 공업화 초창기의 상징적인 건축물,
바로 한국석유공업주식회사 사택이랍니다.

🏭 울산 산업화의 한 축, 한국석유공업
한국석유공업은 1964년에 창립되어
1977년에는 코스피에 상장된, 그야말로 근본 있는 중견기업이에요.
울산이 ‘공업수도’로 발전하기 시작하던 시절,
유공(현 SK), 영남화학, 동양합섬 등과 함께
대한민국 산업화를 이끌던 기업 중 하나였죠.
그때는 외지에서 울산으로 이주해 온 근로자들이 많았지만
마땅한 주거지가 부족해서,
회사에서 직접 공장 인근에 사택을 지어 직원들에게 제공하곤 했습니다.

🏠 1966년, 울산에서 가장 오래된 기업 사택의 탄생
이 사택은 1966년쯤 조성되어
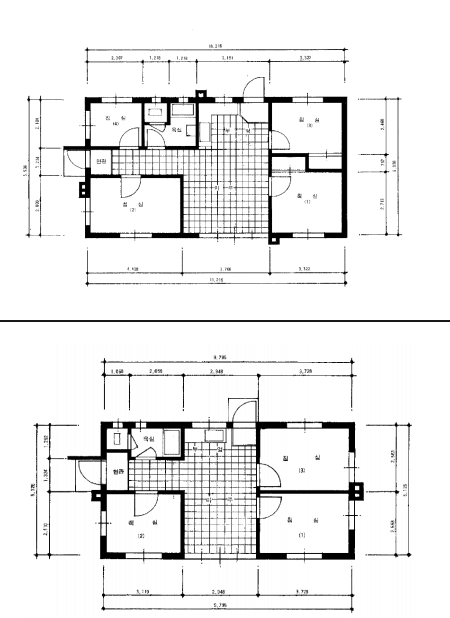
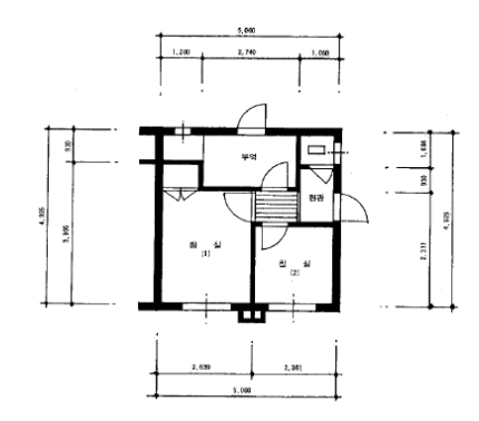
총 10개 동, 17세대가 살던 울산 최초의 기업형 사택입니다.
하지만 창립 인원이 191명이나 되다 보니,
입주 경쟁은 상상을 초월했죠.
결국 관리자급 이상과 일부 직원들만이 제비뽑기(!) 로 입주권을 얻었고,
그나마도 ‘직급’에 따라 배치가 달랐다고 합니다.
위쪽 경사지에는 규모가 큰 주택이,
입구 쪽에는 차고가 포함된 단독형 주택이 자리했어요.
수직적 위계가 그대로 건축 배치에 반영된 셈이죠.
중간에는 아이들이 놀던 작은 놀이터와
식수를 길어올리던 우물도 있었다고 하네요.



📐 주택 구조와 설계의 배경
당시의 주택은 1963년 제정된 공영주택법 표준설계도를 참고해 만들어졌습니다.
1건물 1실형, 2실형 구조로 단순하지만 효율적이었고,
당시 기준으로는 상당히 세련된 주거단지였다고 합니다.
🧱 지금은 ‘멈춰버린 시간’의 공간
최근 답사 시점에는 단 한 가구만 거주 중이었고,
나머지는 모두 비어 있었습니다.
부분적인 보수 흔적은 있었지만,
현재는 완전히 사람이 살지 않는 공실 단지가 되었어요.
그래도 60년 전, 울산의 젊은 산업도시 시절을 품은 이곳은
여전히 그 시대의 공기와 풍경을 느낄 수 있는 공간이었습니다.
⚖️ 재개발과 보존, 엇갈린 시선
지금은 ‘재개발해야 한다’는 입장과
‘산업유산으로 보존해야 한다’는 의견이 맞서고 있다고 합니다.
울산의 중심 상권이 커진 지금,
야음동의 입지면에서는 충분히 개발 가치가 높지만
동시에 울산에서 가장 오래된 기업 사택이라는 상징성도 크죠.
개인적으로는 후자 —
이런 건축물들이 하나둘 사라지는 현실이 아쉬운 만큼,
가능하다면 오래도록 남아 있길 바라게 됩니다.


🏚️ 사라져가는 울산의 기업 사택들
비슷한 시기에 지어진 다른 사택들도 점차 자취를 감추고 있습니다.
- 신정동 S오일 사택 → 동원개발에 매각, 아파트 예정
- 선암동 풍산 사택 → 현재 공실, 곧 철거 예정
이제 이런 풍경은 사진으로만 남을지도 모르겠네요.
울산의 공업화는 단지 공장 굴뚝의 이야기만이 아니라
그곳에서 살아가던 사람들의 삶,
그들의 집과 일상의 역사이기도 합니다.
이 오래된 사택은
그 시절 울산의 뜨거웠던 산업의 숨결과
사람들의 이야기를 그대로 간직하고 있네요.
언젠가 다시 이 공간이
좋은 형태로 기억되길 바라며 —
'부동산' 카테고리의 다른 글
| 울산 호수공원 ‘에일린의 뜰’ — 청약 일정, 야음삼거리 핵심 입지, (1) | 2025.12.01 |
|---|---|
| 울산 덕하 신규 분양 시그널 떴습니다 (1) | 2025.11.26 |
| 유럽과 미국이 먼저 겪은 ‘보유세의 역설’ (0) | 2025.10.24 |
| 울산 신정동, 60년 세월을 품은 미스터리한 교회 (0) | 2025.10.10 |
| 울주군에서 실거주하기 좋은 곳 TOP3 (0) | 2025.09.29 |